北欧风格别墅设计鉴赏
北欧风格以简洁著称于世,并影响到后来的“极简主义”、“简约主义”、“后现代”等风格。北欧风没有过多的造型装饰,把主人翁的生活热情与自然灵感相融合,摒弃蛊惑人心的虚华设计,追求自然的艺术智慧与灵感,讲究以人为本,把注重舒适体验度放在首位,风格简洁、直接、功能化且贴近自然,多体现生命力多维度工业艺术品。

本案例业主为一对年轻夫妻,在空间格局上,因房子住的人不多,就夫妻两人住,所以业主希望公共活动区域尽量宽敞大气,除了保证主卧室和客房的空间以外,需要尽量多的衣帽间和储物空间;夫妻俩喜欢泡澡来放松紧张的工作状态,所以二楼要考虑一个舒适的浴缸。效果:以女主人为主,喜欢简约接近大自然的北欧生活。

北欧风格别墅设计
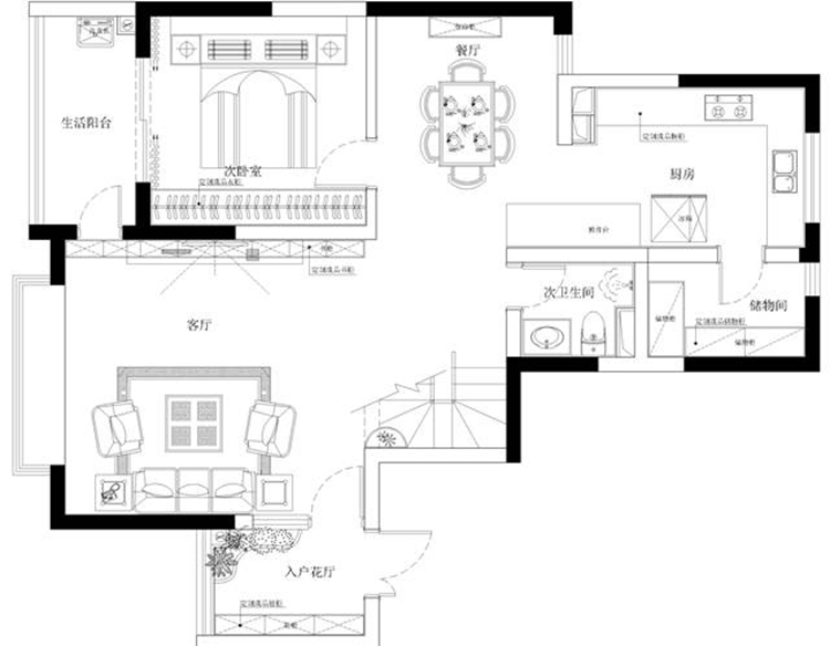
整个空间的设计注重人与自然、社会、与环境的有机的科学的结合,一楼入户花厅和客厅用圆弧形的门窗相连接,客厅保留原有的中空,集中体现了绿色设计、环保设计、可持续发展设计的理念;开放式厨房和餐厅相连,更大的利用了空间功能,显得整个空间通透大气,在形式上更为柔和与有机,因而富有简约生活的气息。

北欧风格别墅设计
家居风格很大程度体现在家具的设计上,简约的书架与白色调电视背景墙相结合,注重功能、简化设计、线条简练。二楼主卧室床头背景用大自然风景的贴图墙纸,进一步体现了人与自然环境的结合,大面积墙面多用明快的浅蓝色,显得空间干净明亮。

北欧风格别墅设计
北欧风格设计貌似不经意的搭配之下,一切又如浑然天成般光彩夺目。任何一个空间,总有一个视觉中心,而这个中心的主导者就是色彩。北欧风格色彩搭配之所以令人印象深刻,是因为它总能获得令人视觉舒服的效果——不用纯色而多使用中性色进行柔和过渡,即使用黑白灰营造强烈效果,也总有稳定空间的元素打破它的视觉膨胀感,比如用素色家具或中性色软装来压制。

北欧风格别墅设计
全案设计是紫苹果装饰1+N设计团队模式:主案设计师、深化设计师、结构设计师、效果图设计师、设备设计师、主材设计师、软装设计师、照明设计师、景观设计师...多个模块设计师组成的项目团队,从专业的角度为您提供全方位的豪宅设计方案。
欢迎咨询紫苹果装饰公司
13年专注居家生活品质
30000+别墅大宅设计施工作品
90%+的客户把紫苹果推荐给自己亲友
贵宾热线:400-8255-919
官网:www.zpg.com.cn
预约装修
紫苹果声明:
Copyright © 2017 zpg.com.cn All Rights Reserved. 沪ICP备12026319号-7 上海紫苹果装饰工程有限公司版权所有
上海紫苹果国际设计-品质赢得口碑
沪公网安备 31011502003160号




免费电话报价400-8255-919