【紫<原创】大美若朴,简约美式的自由情怀

设计师简介:陆颖坤 紫苹果上海公司首席设计师
案例说明
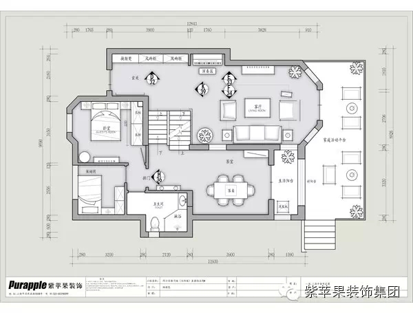
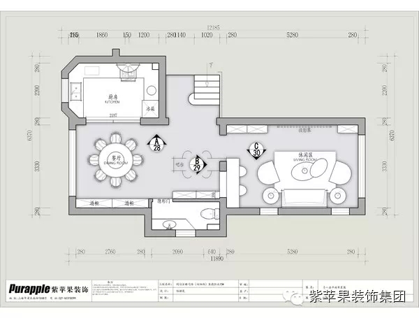
项目名称:圣得恒业花园
面积:332m2
风格:简约美式
本案业主是一名外企高管,为人低调,待人彬彬有礼。拥有三口之家的业主,非常注重生活品质。通过平时的沟通闲聊,设计师了解了业主钟爱休闲放松的居家氛围,于是设计师为业主设计了简约的美式效果,不同于古典的美式,简美不需要太多的花式和繁杂的色系,而是主张淳朴简约,去掉零碎的空间划分,凝造的是不失贵气又绝对让人放松的氛围。









预约装修
紫苹果声明:
Copyright © 2017 zpg.com.cn All Rights Reserved. 沪ICP备12026319号-7 上海紫苹果装饰工程有限公司版权所有
上海紫苹果国际设计-品质赢得口碑
沪公网安备 31011502003160号




免费电话报价400-8255-919