【紫<原创】优雅中式,烟波浩渺,温暖如春。

本方案是围绕现代温馨为主题,打造心灵的港湾。空间的整体色调为温暖的咖啡色系,家具上追求简洁,搭配麻质面料布艺,凸显舒适感。在灯饰方面也呼应空间整体的感觉,选用一些质感清新的款式。本案设计融合了庄重与优雅双重气质,利用了后现代手法,把传统的结构形式通过重新设计组合以另一种民族特色的标志符号出现。
项目信息
项目地址:九夏云水
项目风格:中式风格
设计师介绍主案设计师:罗永瑞 紫苹果首席设计师
助理设计师:秦璘
软装设计师:杨茜茜
主材设计师:徐莹
家具设计师:罗能
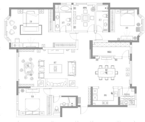
平面布局图

案例效果图
客厅空间



餐厅空间

主卧空间

客房空间

主材设计预案







软装设计预案







本案团队



主案设计师介绍

罗永瑞 紫苹果昆明公司首席设计师
设计格言:空间有界,设计无限。
获得荣誉:
荣获过国内多个设计奖项:华耐杯室内设计大奖赛一等奖
海河外滩规划设计方案优秀奖
作品“直线空间”荣获第一届红土杯室内设计大赛--优秀奖
2010中国室内设计双年展--优秀奖
作品“滇池卫城—微风岛”荣获第四届中国原创家居大赛,『最佳搭配奖』和『综合十强金奖』
2012年作品“品味东南亚”获最佳设计大奖
荣获2014金装奖—中国(云南)室内设计总评榜--铜奖
荣获第九届中国国际建筑装饰及设计艺术博览会(2013—2014年度室内设计百强人物)
昆明家博会设计作品展--优秀奖
2013年作品“雪山小调”荣获宽厚长杯设计大赛三等奖
2008年受聘于云南人民广播电台FM88.7嘉宾讲师
多套设计作品收录于“云南室内设计年鉴”。曾担任“品味家居”杂志,“昆明家居”杂志,“壹家居”杂志,等室内设计杂志特邀约稿设计师
罗永瑞老师曾多次赴欧洲,日本,东南亚,香港,台湾学习、交流。
部分游学“取经”照片展示



全案设计是紫苹果装饰1+N设计团队模式:主案设计师、深化设计师、结构设计师、效果图设计师、设备设计师、主材设计师、软装设计师、照明设计师、景观设计师...多个模块设计师组成的项目团队,从专业的角度为您提供豪宅全局整体设计方案。
13年15城
2000+豪华整装团队
30000+大宅别墅客户青睐
超90%的客户把紫苹果推荐给自己亲友
客户满意度全行业最高
预约装修
紫苹果声明:
Copyright © 2017 zpg.com.cn All Rights Reserved. 沪ICP备12026319号-7 上海紫苹果装饰工程有限公司版权所有
上海紫苹果国际设计-品质赢得口碑
沪公网安备 31011502003160号




免费电话报价400-8255-919