【紫<原创】美式乡村,回归自然,治愈系暖家 .

美式乡村风格,又称美式田园风格,属于自然风格的一支。摒弃了繁琐和奢华的装饰,并将不同风格中的优秀元素汇集融合,以宽敞而富有历史气息, 带有浓浓的乡村意流,借舒适机能为导向,强调“回归自然”使这种风格变得更加表达出轻松、淡然的生活的态度。
项目信息
项目地址:公园1903
项目风格:美式乡村风格
设计师介绍主案设计师:李忠凯 紫苹果首席设计师
深化设计师:刘峥嵘 者明磊
软装设计师:代欣
主材设计师:魏栋栋
家具设计师:罗能
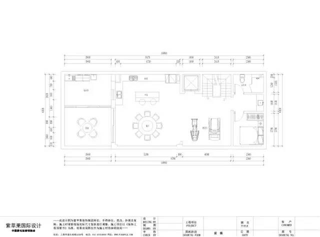
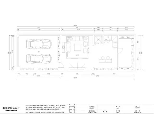
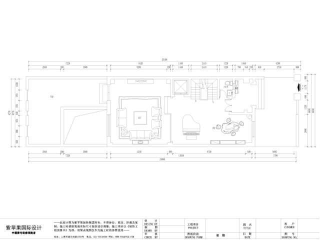
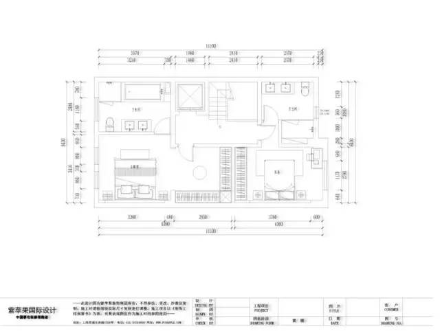
平面布局图





案例效果图















主材设计预案




软装设计预案



『本案团队』



主案设计师介绍

设计师简介:李忠凯 首席设计师
设计理念:设计在“精”,不在“多”
设计经验:8年
个人荣誉
○毕业于云南师范大学环境艺术设计系
○中国室内设计装饰学会会员
○曾为上百家尊贵客户提供过专业服务
○曾多次为社会知名人士设计会所及别墅
○都市时报特约设计师讲师
○作品多次刊登设计类杂志
○2015获云南十佳设计师称号
○2015获第六届中国国际空间环境艺术设计大赛筑巢奖
全案设计是紫苹果装饰1+N设计团队模式:主案设计师、深化设计师、结构设计师、效果图设计师、设备设计师、主材设计师、软装设计师、照明设计师、景观设计师...多个模块设计师组成的项目团队,从专业的角度为您提供豪宅全局整体设计方案。
13年15城
2000+豪华整装团队
30000+大宅别墅客户青睐
超90%的客户把紫苹果推荐给自己亲友
客户满意度全行业最高
预约装修
紫苹果声明:
Copyright © 2017 zpg.com.cn All Rights Reserved. 沪ICP备12026319号-7 上海紫苹果装饰工程有限公司版权所有
上海紫苹果国际设计-品质赢得口碑
沪公网安备 31011502003160号




免费电话报价400-8255-919