【紫<原创】极简北欧风情,喜欢你是寂静的。

北欧风格以简洁著称于世,并影响到后来的“极简主义”、“简约主义”、“后现代”等风格。北欧风没有过多的造型装饰,把主人翁的生活热情与自然灵感相融合,摒弃蛊惑人心的虚华设计,追求自然的艺术智慧与灵感,讲究以人为本,把注重舒适体验度放在首位,风格简洁、直接、功能化且贴近自然,多体现生命力多维度工业艺术品。
项目信息
项目地址:新亚洲体育城星云园
项目风格:北欧风格
设计师介绍主案设计师:杨正梅 紫苹果优秀设计师
助理设计师:王树松
软装设计师:杨茜茜
主材设计师:徐莹
家具设计师:胡家敬
业主诉求:业主为一对年轻夫妻,在空间格局上,因房子住的人不多,就夫妻两人住,所以业主希望公共活动区域尽量宽敞大气,除了保证主卧室和客房的空间以外,需要尽量多的衣帽间和储物空间;夫妻俩喜欢泡澡来放松紧张的工作状态,所以二楼要考虑一个舒适的浴缸。效果:以女主人为主,喜欢简约接近大自然的北欧生活。
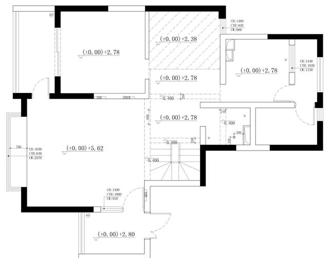
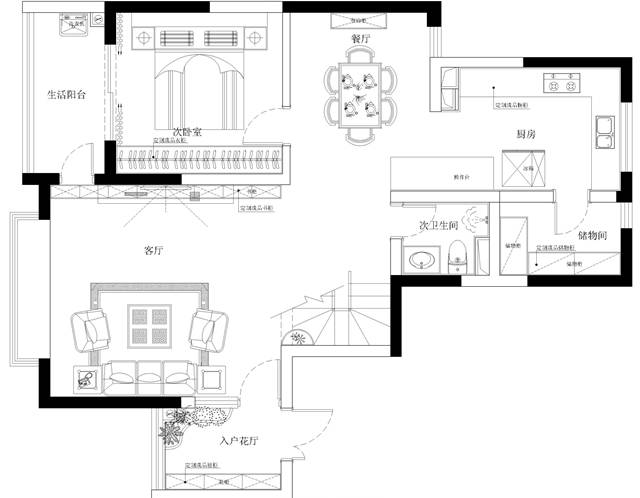
平面布局图




设计亮点:整个空间的设计注重人与自然、社会、与环境的有机的科学的结合,一楼入户花厅和客厅用圆弧形的门窗相连接,客厅保留原有的中空,集中体现了绿色设计、环保设计、可持续发展设计的理念;开放式厨房和餐厅相连,更大的利用了空间功能,显得整个空间通透大气,在形式上更为柔和与有机,因而富有简约生活的气息;家居风格很大程度体现在家具的设计上,简约的书架与白色调电视背景墙相结合,注重功能、简化设计、线条简练。二楼主卧室床头背景用大自然风景的贴图墙纸,进一步体现了人与自然环境的结合,大面积墙面多用明快的浅蓝色,显得空间干净明亮。
案例效果图






主材设计预案











本案团队




设计师简介:杨正梅 优秀设计师
设计经验:6年
自2010年毕业于云南大学,之后就职于紫苹果装饰公司优秀设计师职位,曾多次赴东南亚国家交流学习



13年15城
2000+豪华整装团队
30000+大宅别墅客户青睐
超90%的客户把紫苹果推荐给自己亲友
客户满意度全行业最高
预约装修
紫苹果声明:
Copyright © 2017 zpg.com.cn All Rights Reserved. 沪ICP备12026319号-7 上海紫苹果装饰工程有限公司版权所有
上海紫苹果国际设计-品质赢得口碑
沪公网安备 31011502003160号




免费电话报价400-8255-919