上海别墅装饰设计鉴赏
今天小编给大家介绍一款欧式风格的别墅装饰设计鉴赏,话不多说,咱们直接进入正题:
风格:简欧
面积:248平方米
造价:64万
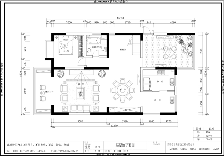
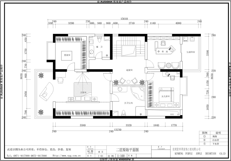
户型图:

上海别墅装饰设计鉴赏

设计说明:
本案以古典庄严的欧式风格,演绎主人对生活品质的追求,高端大气上档次是整个空间的诠释。从圆拱门开始,贵族童话的序幕徐徐拉开,在这里将上演舞步华丽的华尔兹,只因背后亦有多元实用的房屋功能作为后盾。

上海别墅装饰设计鉴赏
别墅设计师采用的使经典的欧式风格,整体效果偏暖,视觉上极其豪华大气,尊贵优雅。廊柱和墙壁采用经典的象牙白,十分美观。

上海别墅装饰设计鉴赏
客厅在色彩的选取上稍作修改,放弃传统的浅色设计,选用颜色较深一些的家具和幕墙,搭配方格纹理大理石地板,奢华风格一览无遗,桌椅和沙发均是传统欧式布艺装饰设计,非常舒适优雅。

上海别墅装饰设计鉴赏
沙发来张特写,欧式花纹设计还是非常精致的,触感厚实细腻,碎花搭配暗金色,浓郁的贵族风情。

上海别墅装饰设计鉴赏
卧室的设计沿袭别墅装饰的整体欧式风格,大面积的选用暗金色作为主基调,打造视觉上的奢华体验,红橡木地板与卧室空间的浅色形成对比,很好的缓解了视觉疲劳,略显简单的装饰也体现了业主性格中低调的一部分。

上海别墅装饰设计鉴赏
本期鉴赏就到这里了,如果喜欢,可以随时联系我们:
欢迎咨询紫苹果装饰公司
13年专注居家生活品质
30000+别墅大宅设计施工作品
90%+的客户把紫苹果推荐给自己亲友
贵宾热线:400-8255-919
官网:www.zpg.com.cn
预约装修
紫苹果声明:
Copyright © 2017 zpg.com.cn All Rights Reserved. 沪ICP备12026319号-7 上海紫苹果装饰工程有限公司版权所有
上海紫苹果国际设计-品质赢得口碑
沪公网安备 31011502003160号




免费电话报价400-8255-919